Facebook Pixel

Quadrilocale con sottotetto in Vendita a Statuto

  • location_on
    Firenze
  • sell
    Vendita
  • square_foot
    101 m2
  • space_dashboard
    4 vani
  • euro_symbol
    395.000

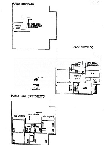
In una delle zone più ricercate di Firenze, precisamente nel quartiere Statuto/Fortezza, proponiamo in esclusiva quadrilocale di 101 mq s.u.l. posto al secondo ed ultimo piano di una piccola palazzina con elegante facciata in pietra. Questa esclusiva proprietà è perfetta per chi cerca spazio e comfort senza rinunciare alla comodità della vita cittadina.L'immobile si compone di un ampio ingresso centrale che può essere facilmente utilizzato come soggiorno a vista, una luminosa sala da pranzo ed un cucinotto funzionale, due camere da letto matrimoniali e una camera singola ideale per ospiti o come studio; il bagno finestrato è dotato di doccia mentre il ripostiglio offre ulteriore spazio utile. Un balcone tergale garantisce tranquillità e privacy. Completano la proprietà una cantina finestrata e un sottotetto accessibile direttamente dall'abitazione; quest'ultimo presenta potenzialità interessanti per creare una terrazza a tasca o addirittura ulteriori ambienti sfruttando le generose altezze dell'appartamento. Il riscaldamento è autonomo e l'appartamento gode di doppia esposizione che assicura ottima luminosità durante tutto il giorno. La manutenzione del condominio è eccellente, rendendo questo immobile ancora più appetibile.La posizione strategica consente facile accesso ai principali servizi: farmacie, supermercati, scuole sono tutti nelle immediate vicinanze. Inoltre, i mezzi pubblici non mancano: la tramvia Linea T1 dista solo pochi metri così come le fermate dei treni e degli autobus. Ideale per nuclei familiari e per coloro che vogliono acquistare per investimento locativo data l'estrema vicinanza al centro storico della città.

Fai un tour virtuale di questo appartamento in vendita a Firenze

Caratteristiche appartamento in vendita a Firenze

stairsPiano2
bathtubBagni1
night_shelterCamere3
fireplaceRiscaldamento autonomocheck
boltClasse energeticaG
balconyTerrazzi1
badgeRiferimento agenziaCELSRLL

Ubicazione appartamento in vendita a Firenze

Abbiamo realizzato un video di presentazione di questo immobile: appartamento in vendita a Firenze

Altri appartamenti in vendita a Firenze

Quotazione Immobiliare

Vuoi vendere casa? Scopri subito quanto vale!

Valuta il tuo immobile

Richiedi informazioni

Invia una richiesta di informazioni per questo quadrilocale con sottotetto in Vendita a Statuto